LF系列多机组智能除尘系统_废气处理_中央除尘_天津天迈节能设备有限公司官网

产品中心

LF系列多机组智能除尘系统

 

LF系列除尘

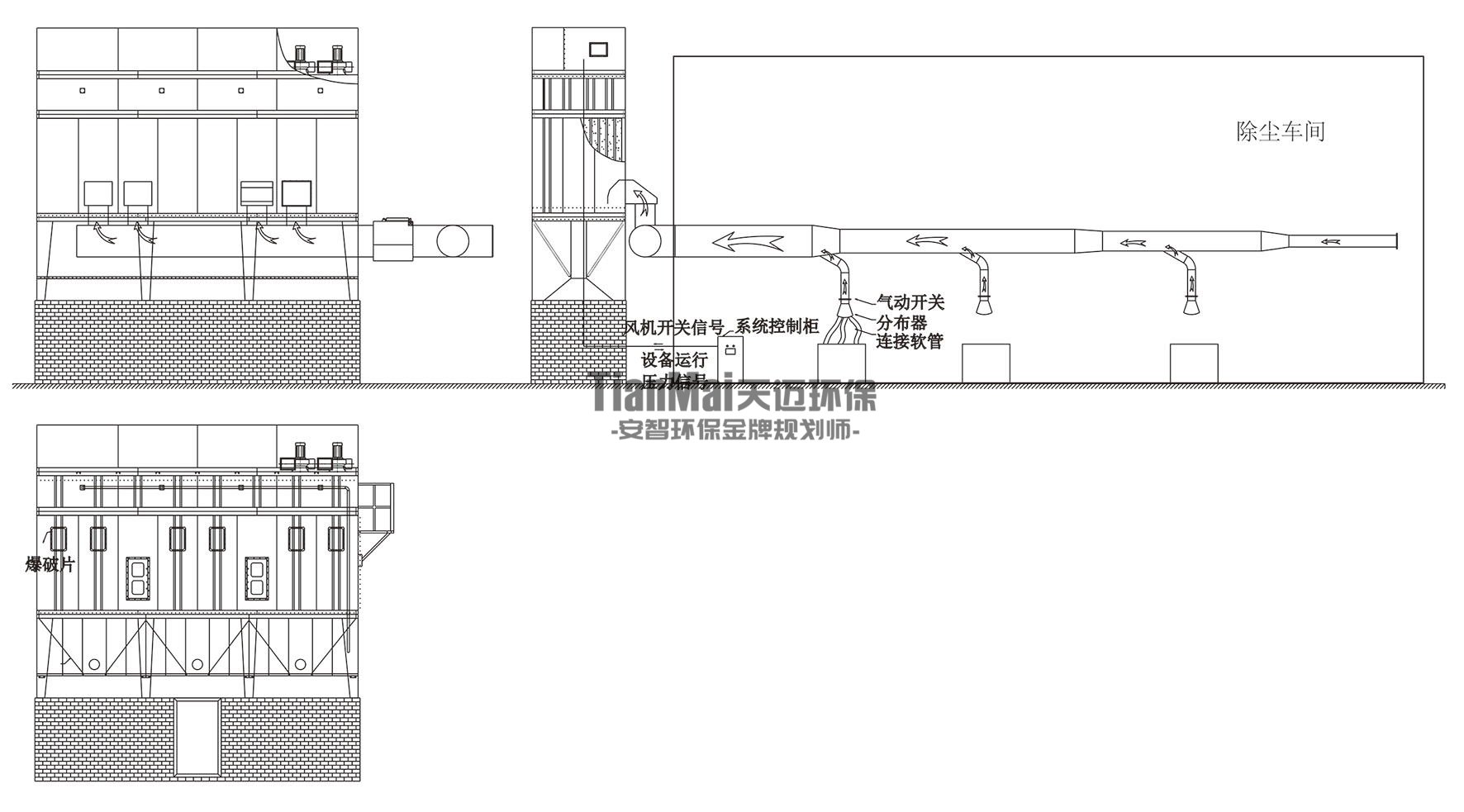
工艺原理
 
含粉尘气体 (集气罩)— 连接软管 — 排风口 — 气动阀 — 主风管 — 沉降室 — 除尘器  — 卸料器 — 料仓
中央除尘系统由吸尘器主机、智能控制系统,吸尘管网、吸尘插口、灰仓等吸尘组件组成。吸尘主机置于室外或建筑物的机房、阳台、车库、设备间内。主机通过嵌至墙里的吸尘管道与每个房间的吸尘插口相连接,连接在墙外只留如普通电源插座大小的吸尘插口,在进行清洁工作时将一根较长的软管插入吸尘插口,灰尘、纸屑、烟头、杂物及有害气体通过严格密封的真空管道,将灰尘过滤后清理至灰仓中。任何人,任何时间都可以进行全部或局部清洁,操作简单、方便,避免了二次污染,确保了清洁的室内环境。
除尘器系统运行时,因设备采用高效负压风机,生产场所各扬尘点所发生的粉尘被捕集,并进入高压输送管,由于惯性作用直接落下,起到预收尘的作用,轻细粉尘则随空气进入脉冲袋滤式除尘器。脉冲袋滤式除尘器主要利用高密度过滤材料,对含尘气体进行过滤分离,同时利用在线式脉冲喷吹系统,引导压缩空气对滤袋进行逆向喷吹,利用喷吹时滤袋的急剧膨胀震动及方向气流的作用,将粉尘震落至除尘器底部,再由排料系统排出。
 



规格参数